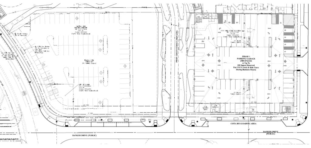
Case 25-066 – Conditional Use – 4370 Dale Drive
Request for review and approval of a Conditional Use for COTA Park & Ride located in a new parking structure. The 5.37-acre site is zoned BSD-SRN, Bridge Street District, Scioto River Neighborhood and is located southeast of the intersection of Bridge Park Avenue and Dale Drive.
Applicant: Sarah Wilson, EMH&T
Planner: Zach Hounshell, Planner II; (614) 410-4652; zhounshell@dublin.oh.us
Planning and Zoning Commission – July 17, 2025 – Approved – Video
Planning Report | Narrative | Drawings | History
