
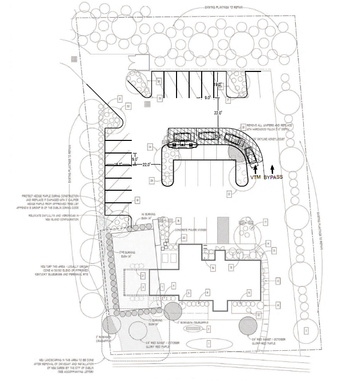
Case 25-097 – Informal Review – 48 Corbins Mill Dr
Request for review and non-binding feedback for the construction of a drive-through facility for a bank conversion, plus minor site improvements. The .90-acre site is zoned BSD-C, Bridge Street District – Commercial and is located at 48 Corbins Mill Drive.
Applicant: Stephen Butler; Community Civil Engineers
Planner: Sarah Holt, Senior Planner; sholt@dublin.oh.us, (614) 410-4662
Planning and Zoning Commission – October 23, 2025 – Provided Non-Binding Feedback – Video
Planning Report | Narrative | Combined Drawings | History