Case 25-054 – Demolition – 105 Franklin St. Request for review and approval of demolition of a Background structure on two lots totaling .75 acres in the Historic District. Applicant: Jeffrey Greiner Planner: Sarah Holt, Senior Planner; sholt@dublin.oh.us, (614) 410-4662 Architectual Review Board – September 24, 2025 – Approved – Video Planning Report | Application Submission – August […]
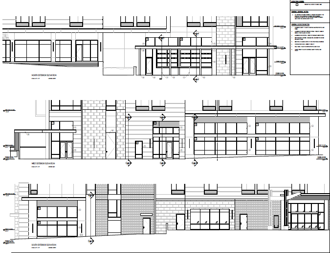
Case 25-086 – Waiver Review – 4495 Bridge Park Ave. Request for review and approval of a Waiver request to allow a reduction in the ground story transparency for an existing tenant space. The 0.56-acre site is zoned BSD-Scioto River Neighborhood and is located at 4495 Bridge Park Avenue. Applicant: Matthew Lones; Orange frog Design […]
(Dublin, Ohio) — The City of Dublin’s Communications & Marketing team proudly received three City-County Communications & Marketing Association (3CMA) awards during the national conference in Las Vegas, Nevada. Out of more than 1,166 entries from 365 jurisdictions across the U.S. and Canada, Dublin stood out among 141 finalists representing 35 states and Canada. The […]