
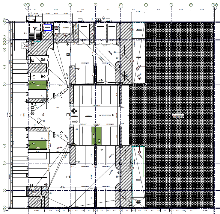
Case 25-087 – Administrative Departure – The Ellis Parking Garage
A request for review and approval of Administrative Departures to allow a parking garage in Bridge Park, Block J to exceed the maximum number of compact parking spaces permitted, and reduce the minimum width of drive aisles. The 5.37-acre site is zoned BSD-SRN, Bridge Street District, Scioto River Neighborhood and is located southeast of the intersection of Bridge Park Avenue and Dale Drive.
Applicant: Yevgeniy Nudel; MA Design
Planner: Zach Hounshell, Planner II; zhounshell@dublin.oh.us, (614) 410-4652
Administrative Review Team – September 11, 2025 – Approved
Planning Report | Narrative | Drawings | History